Планировки авторских домов
Главная / Авторские дома / Планировки

| № по ген плану | Наименование | Площадь дома м² | Площадь участка м² |
|---|---|---|---|
| 1 | Жилой дом №1 | 271 | 642 |
| 2 | Жилой дом №2 | 282 | 638 |
| 3 | Жилой дом №3 | 275 | 644 |
| 4 | Жилой дом №4 | 275 | 655 |
| 5 | Жилой дом №5 | 271 | 641 |
| 6 | Жилой дом №6 | 282 | 662 |
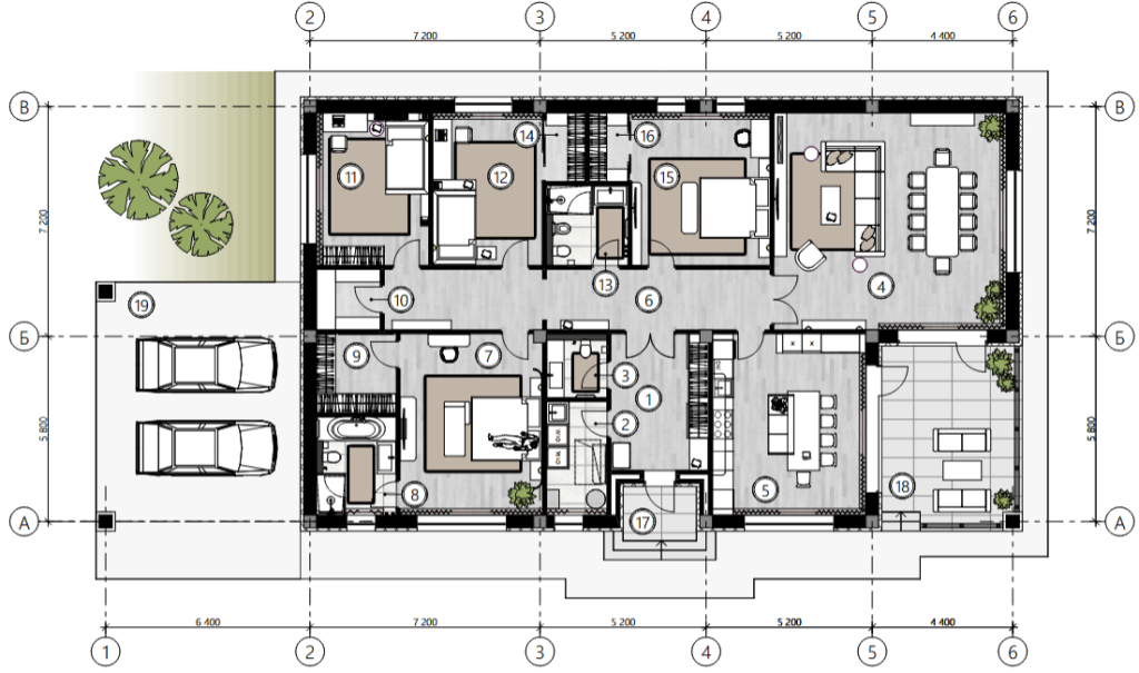
Жилой дом №1.
| № | Наименование | Площадь, м² |
|---|---|---|
| 1 | Прихожая | 13,02 |
| 2 | Котельная | 6,76 |
| 3 | Гостевой туалет | 3,80 |
| 4 | Гостиная | 49,50 |
| 5 | Кухня-столовая | 27,26 |
| 6 | Коридор | 22,95 |
| 7 | Спальня №1 | 25,25 |
| 8 | Ванная комната | 7,70 |
| 9 | Гардероб | 6,20 |
| 10 | Кладовая | 3,80 |
| 11 | Спальня №2 | 16,82 |
| 12 | Спальня №3 | 16,41 |
| 13 | Ванная комната | 6,40 |
| 14 | Гардероб | 2,64 |
| 15 | Спальня №4 | 20,65 |
| 16 | Гардероб | 2,64 |
| Общая площадь дома | 231,86 | |
| 17 | Крыльцо (3,91×0,5=1,95) | 1,95 |
| 18 | Терраса (24,80×0,5=12,40) | 12,40 |
| 19 | Навес для а/м (49,92м²×0,5=24,96) | 24,96 |
| Общая площадь | 271,17 | |
Жилой дом №2.
| № | Наименование | Площадь, м² |
|---|---|---|
| 1 | Прихожая | 13,02 |
| 2 | Котельная | 6,76 |
| 3 | Гостевой туалет | 3,80 |
| 4 | Гостиная | 49,50 |
| 5 | Кухня-столовая | 27,26 |
| 6 | Коридор | 22,38 |
| 7 | Спальня №1 | 28,10 |
| 8 | Ванная комната | 10,00 |
| 9 | Гардероб | 11,68 |
| 10 | Кладовая | 4,37 |
| 11 | Спальня №2 | 18,47 |
| 12 | Ванная комната | 9,57 |
| 13 | Спальня №3 | 18,16 |
| 14 | Спальня №4 | 20,17 |
| Общая площадь дома | 243,24 | |
| 15 | Крыльцо (3,91×0,5=1,95) | 1,95 |
| 16 | Терраса (24,80×0,5=12,40) | 12,40 |
| 17 | Навес для а/м (48,72м²×0,5=24,36) | 24,36 |
| Общая площадь | 281,95 | |
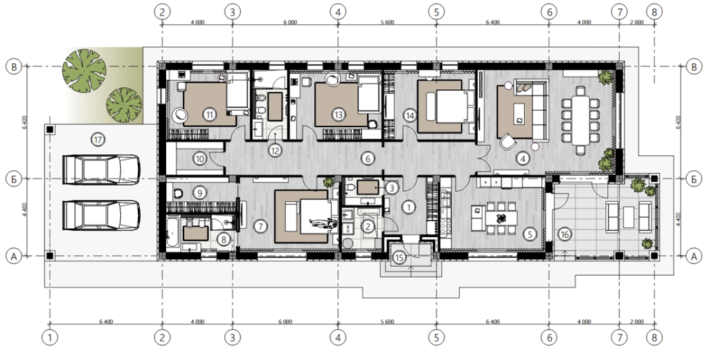
Жилой дом №3.
| № | Наименование | Площадь, м² |
|---|---|---|
| 1 | Прихожая | 9,96 |
| 2 | Котельная | 5,89 |
| 3 | Гостевой туалет | 3,69 |
| 4 | Гостиная | 47,28 |
| 5 | Кухня-столовая | 25,68 |
| 6 | Коридор | 26,98 |
| 7 | Спальня №1 | 24,23 |
| 8 | Ванная комната | 8,64 |
| 9 | Гардероб | 7,89 |
| 10 | Кладовая | 6,23 |
| 11 | Спальня №2 | 19,10 |
| 12 | Ванная комната | 7,96 |
| 13 | Спальня №3 | 20,86 |
| 14 | Спальня №4 | 20,70 |
| Общая площадь дома | 235,46 | |
| 15 | Крыльцо (2,99×0,5=1,50) | 1,50 |
| 16 | Терраса (26,88×0,5=13,44) | 13,44 |
| 17 | Навес для а/м (49,92м²×0,5=24,96) | 24,96 |
| Общая площадь | 275,36 | |
Жилой дом №4 (зерк.)
| № | Наименование | Площадь, м² |
|---|---|---|
| 1 | Прихожая | 9,96 |
| 2 | Котельная | 5,89 |
| 3 | Гостевой туалет | 3,69 |
| 4 | Гостиная | 47,28 |
| 5 | Кухня-столовая | 25,68 |
| 6 | Коридор | 26,98 |
| 7 | Спальня №1 | 24,23 |
| 8 | Ванная комната | 8,64 |
| 9 | Гардероб | 7,89 |
| 10 | Кладовая | 6,23 |
| 11 | Спальня №2 | 19,10 |
| 12 | Ванная комната | 7,96 |
| 13 | Спальня №3 | 20,86 |
| 14 | Спальня №4 | 20,70 |
| Общая площадь дома | 235,46 | |
| 15 | Крыльцо (2,99×0,5=1,50) | 1,50 |
| 16 | Терраса (26,88×0,5=13,44) | 13,44 |
| 17 | Навес для а/м (49,92м²×0,5=24,96) | 24,96 |
| Общая площадь | 275,36 | |
Жилой дом №5 (зерк.)
| № | Наименование | Площадь, м² |
|---|---|---|
| 1 | Прихожая | 13,02 |
| 2 | Котельная | 6,76 |
| 3 | Гостевой туалет | 3,80 |
| 4 | Гостиная | 49,50 |
| 5 | Кухня-столовая | 27,26 |
| 6 | Коридор | 22,95 |
| 7 | Спальня №1 | 25,25 |
| 8 | Ванная комната | 7,70 |
| 9 | Гардероб | 6,20 |
| 10 | Кладовая | 3,80 |
| 11 | Спальня №2 | 16,82 |
| 12 | Спальня №3 | 16,41 |
| 13 | Ванная комната | 6,40 |
| 14 | Гардероб | 2,64 |
| 15 | Спальня №4 | 20,65 |
| 16 | Гардероб | 2,64 |
| Общая площадь дома | 231,86 | |
| 17 | Крыльцо (3,91×0,5=1,95) | 1,95 |
| 18 | Терраса (24,80×0,5=12,40) | 12,40 |
| 19 | Навес для а/м (49,92м²×0,5=24,96) | 24,96 |
| Общая площадь | 271,17 | |
Жилой дом №6 (зерк.)
| № | Наименование | Площадь, м² |
|---|---|---|
| 1 | Прихожая | 13,02 |
| 2 | Котельная | 6,76 |
| 3 | Гостевой туалет | 3,80 |
| 4 | Гостиная | 49,50 |
| 5 | Кухня-столовая | 27,26 |
| 6 | Коридор | 22,38 |
| 7 | Спальня №1 | 28,10 |
| 8 | Ванная комната | 10,00 |
| 9 | Гардероб | 11,68 |
| 10 | Кладовая | 4,37 |
| 11 | Спальня №2 | 18,47 |
| 12 | Ванная комната | 9,57 |
| 13 | Спальня №3 | 18,16 |
| 14 | Спальня №4 | 20,17 |
| Общая площадь дома | 243,24 | |
| 15 | Крыльцо (3,91×0,5=1,95) | 1,95 |
| 16 | Терраса (24,80×0,5=12,40) | 12,40 |
| 17 | Навес для а/м (48,72м²×0,5=24,36) | 24,36 |
| Общая площадь | 281,95 | |






